no. 18990/4651/OLW
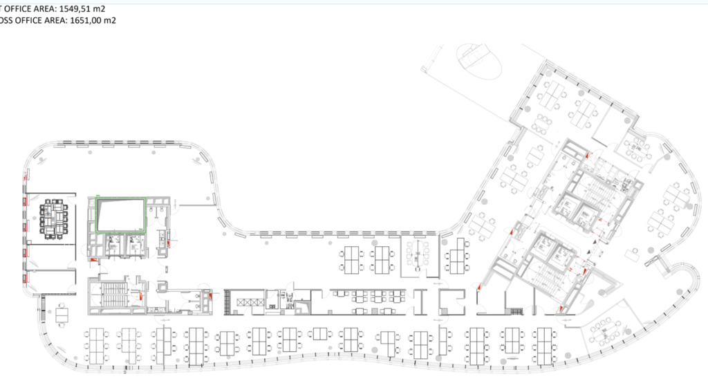
Office on the third floor
Warszawa, Śródmieście

Net size 1 542 m2
Rent for m2 20,0 EUR/m2
Service charges/m2 34,0 PLN/m2
Floor 3
Rent 30 840 EUR
Service charges 52 490 PLN
Ask your advisor about:
- Rent-free period
- Fit-out budget
- Effective rent
A characteristic office building located in the center of Warsaw, next to the Politechnika metro station. The location guarantees great access to public transport. The original and modern architecture of the office building makes it perfectly visible and stands out among the surrounding buildings. An additional advantage is the immediate vicinity of the Pole Mokotowskie park.
Office space located on the 3rd floor.