no. 33404/4651/OLW
Ready to move in office in a great location
Warszawa, Żoliborz

Net size 434 m2
Rent for m2 21,5 EUR/m2
Service charges/m2 29,5 PLN/m2
Floor 2
Rent 9 331 EUR
Service charges 12 812 PLN
Ask your advisor about:
- Rent-free period
- Fit-out budget
- Effective rent
The prestigious 5-storey building will be located in the newest office complex in the post-industrial part of Warsaw in Żoliborz. The location provides very good transport connections. The complex will be surrounded by greenery and numerous rest areas.
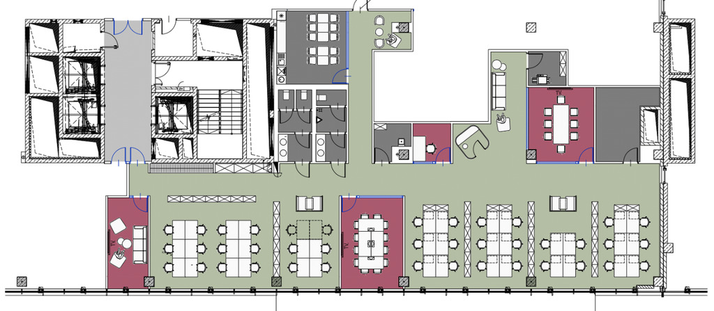
A finished office at an attractive price, right next to Westfield Arkadia. The space consists of an open space, several conference rooms, an office, a kitchen, and private restrooms. Photos of the office show its actual finish.