no. 16546/4651/OLW
Office for rent
Wrocław, Stare Miasto

Net size 299 m2
Rent for m2 52,0 PLN/m2
Service charges/m2 25,0 PLN/m2
Floor 3
Rent 15 548 PLN
Service charges 7 475 PLN
Ask your advisor about:
- Rent-free period
- Fit-out budget
- Effective rent
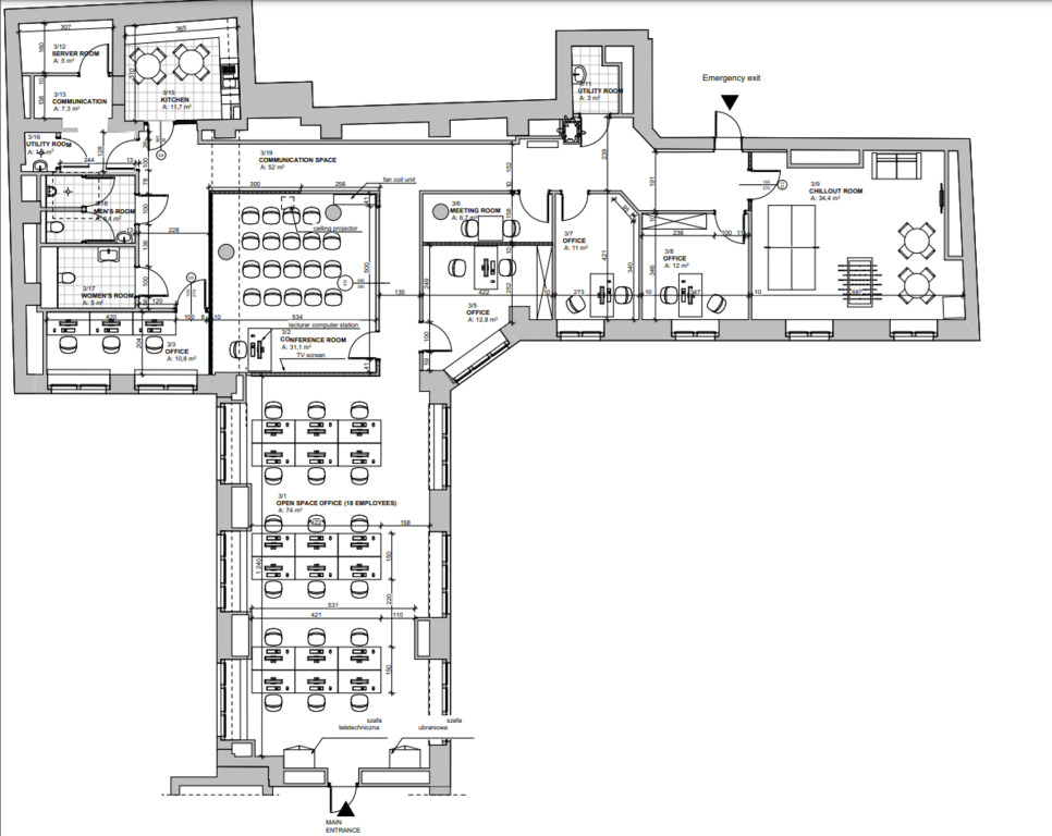
A luxurious office building offering unique office space, while maintaining amenities typical of modern office buildings. The whole is located on one of the most prestigious streets in Wrocław. The building is located just 100m from the Wrocław Market Square and provides extensive access to commercial and service infrastructure as well as catering. There are numerous bus and tram stops nearby and you can park your car in one of several city car parks nearby.
Office space in a mixed layout. The module is decorated in a loft style, very well lit due to the large windows typical of this style. The office has its own social and sanitary facilities. The whole consists of: - open space, - 4 offices, - 1 conference room, - 1 meeting room, - chillout zone, - kitchen, bathrooms, server room, warehouse. As additional fees - utilities per area, heating fee - proportional to the area. 8% should be added to the square footage (share in common areas) as the basis for calculating fees.