nr. 32671/4651/OLW
Biuro dostępne od zaraz
Warszawa, Włochy
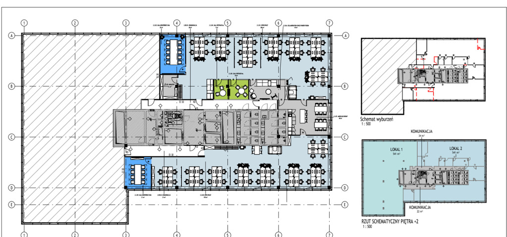
Powierzchnia 693 m2
Czynsz za m2 16,0 EUR/m2
Koszty ekspl./m2 31,0 PLN/m2
Piętro 2
Czynsz 11 088 EUR
Koszty ekspl. 21 483 PLN
Zapytaj doradcę o:
- Zwolnienia czynszowe
- Budżet na fit-out
- Czynsz efektywny
Nowoczesny budynek znajdujący się w pobliżu skrzyżowania ulicy Hynka z Aleją Krakowską. Dogodna lokalizacja zapewnia łatwy dostęp do innych części miasta zarówno transportem publicznym jak i prywatnym. Zaletą lokalizacji jest bliskość Międzynarodowego Portu Lotniczego im. Fryderyka Chopina. Wysoki standard wykończeń stwarza wygodne, przyjazne i bezpieczne środowisko pracy.
Biuro w dobrym stanie do lekkiego odświeżenia dobrze doświetlone w podziale głównie open space. Możliwa nowa aranżacja. Wynajmujący przeznacza budżet na odnowienie biura. Przedstawione zdjęcia to stan istniejący powierzchni. Właściciel może zapewnić 20 miejsc parkingowych na czas trwania umowy.