nr. 25767/4651/OLW
Biuro w centrum, gotowe do wejścia od zaraz
Warszawa, Śródmieście

Powierzchnia 272 m2
Czynsz za m2 17,0 EUR/m2
Koszty ekspl./m2 32,0 PLN/m2
Piętro 5
Czynsz 4 624 EUR
Koszty ekspl. 8 704 PLN
Zapytaj doradcę o:
- Zwolnienia czynszowe
- Budżet na fit-out
- Czynsz efektywny
OPIS BUDYNKU:
Kameralny biurowiec położony w samym sercu Warszawy, niedaleko Galerii Złote Tarasy i Pałacu Kultury. W najbliższej okolicy znajdują się renomowane restauracje, hotele i sklepy. Lokalizacja gwarantuje doskonały dostęp do komunikacji miejskiej - Dworca Centralnego, pierwszej linii metra oraz licznych linii tramwajowych i autobusowych. Budynek składa się z dziewięciu pięter, z których każde oferuje wysokiej jakości przestrzenie do pracy. Duże okna zapewniają optymalny dostęp naturalnego światła i widok na centrum miasta.
Budynek przeszedł renowacje lobby i recepcji w 2025 roku.
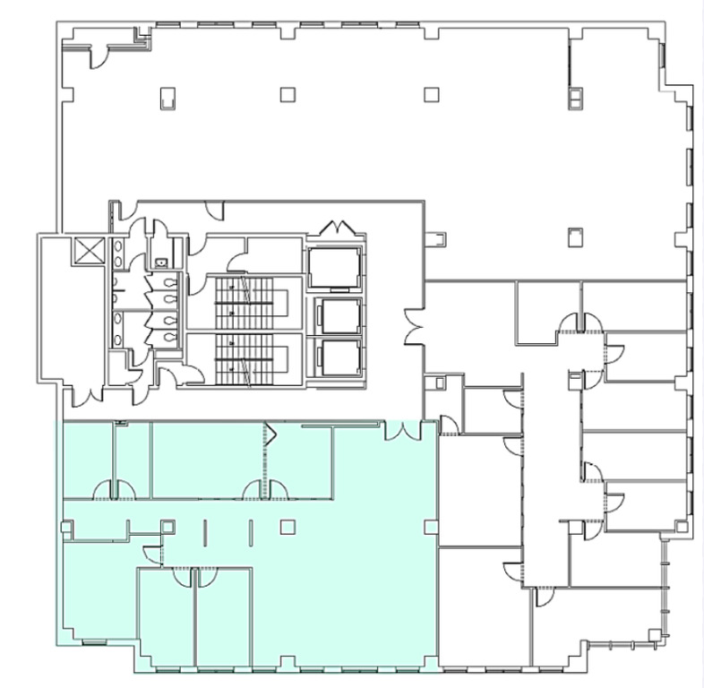
Powierzchnia znajduje się na 5 piętrze i jest podzielona na 3 gabinety, open space, salę konferencyjną, mniejsza salkę do spotkań, aneks kuchenny, recepcję oraz magazynek. Wszystkie gabinety są bardzo dobrze doświetlone, co powoduje wysoki komfort pracy. Biuro dostosowane jest do pracy ok 30-35 pracowników. Dostępne od zaraz.
Powierzchnia netto to 256 mkw.