nr. 30607/4651/OLW
Klimatyczna przestrzeń z opcją umeblowania
Warszawa, Śródmieście

Powierzchnia 392 m2
Czynsz za m2 90,0 PLN/m2
Koszty ekspl./m2 35,0 PLN/m2
Piętro 2
Czynsz 35 280 PLN
Koszty ekspl. 13 720 PLN
Zapytaj doradcę o:
- Zwolnienia czynszowe
- Budżet na fit-out
- Czynsz efektywny
Zabytkowa kamienica zachwyca urodą. Olbrzymia, eklektyczna 5-kondygnacyjna fasada zapełniona jest dekoracjami w postaci masek, głów, kwiatów, liści, gzymsów i boni. Dom jest pamiątką po wspaniałej historii ul. Jasnej – ulicy zdobionych, wielkomiejskich kamienic, siedzib przedsiębiorstw, towarzystw ubezpieczeniowych, banków i filharmonii.
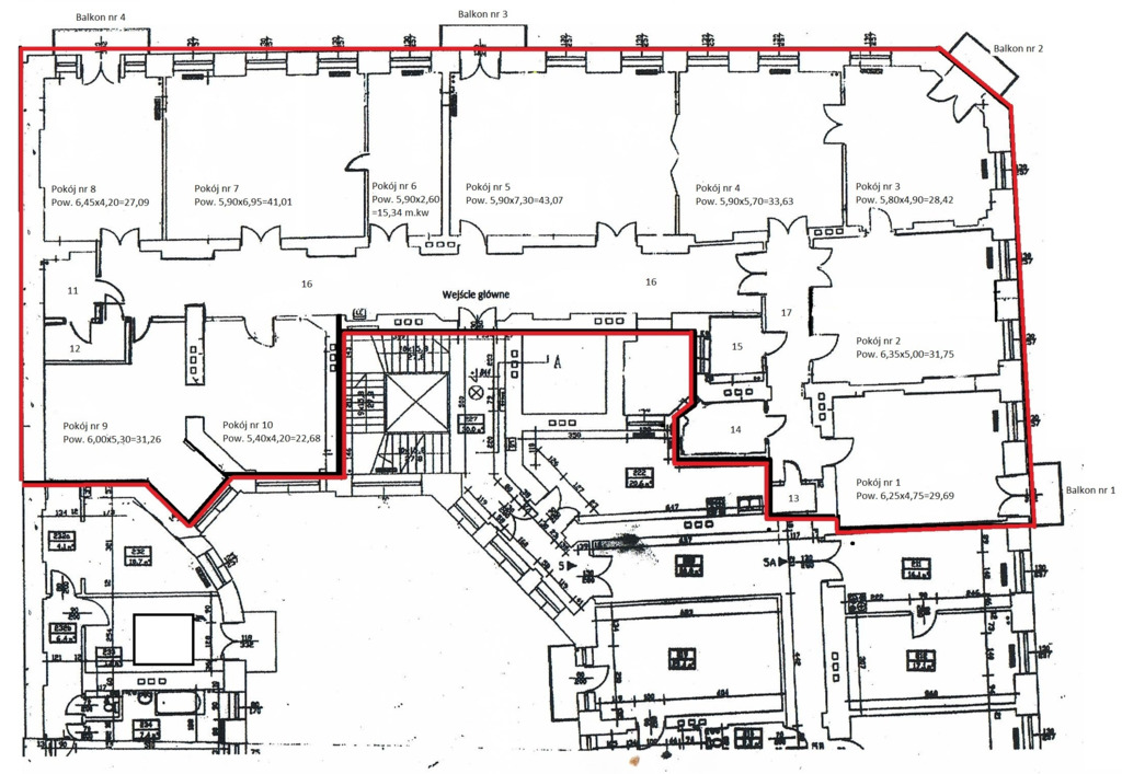
Klimatyczne biuro znajduje się na 2 piętrze w kamienicy z windą. Powierzchnia podzielona jest na 10 pomieszczeń do pracy biurowej, 2 aneksy kuchenne, 2 zestawy łazienek, pomieszczenie gospodarze/serwerownie. Z kilku pokoi jest wyjście na balkon. Przestrzeń jest znakomicie doświetlona oraz wysoka na prawie 4 metry. Istnieje możliwość umeblowania biura oraz pełnego serwisu powierzchni po stronie wynajmującego w tym opłat za zużycie energii elektrycznej, internetu, sprzątania powierzchni. Wysokość pomieszczeń 400cm.